



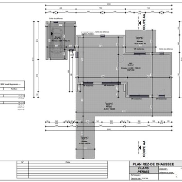
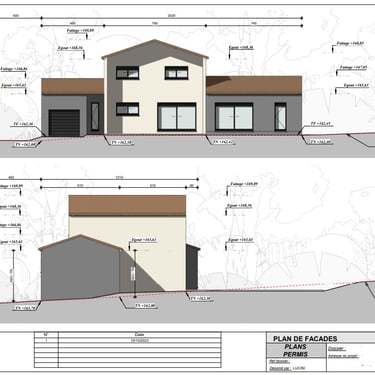
Permis de construire:












Pomberie:
Carrelage:












Dans le cadre de chaque projet de construction ou de rénovation, la qualité des travaux repose en grande partie sur les compétences et le sérieux des artisans sélectionnés. Conscient de l’importance de ce choix, je mets un point d’honneur à travailler uniquement avec des artisans expérimentés et fiables, capables de répondre aux exigences techniques et esthétiques de votre projet.
Gros oeuvre:
Placo:
Electricité:
Climatisation:
Sélection rigoureuse des artisans pour votre projet
LTC travaux vous accompagne dans vos projets, que ce soit votre première résidence, une rénovation un agrandissement aménagement .
Pour que cela devienne réalité, nous mettons notre expérience à votre service
Contact
Mr Hatton-lagainiere
+33 7 64 51 17 34
© 2023 Copyright. Tous droits réservés LT construction - Réalisation du site par htwebsite


lt.conceptconstruction@gmail.com
